耐久性抜群&高気密設計、自動復帰対応の高速シートシャッター!ワールド工業

特 徴

製品一覧

オプション品

技術資料

Q&A

施工例

設置事例

カタログ

モノタロウ

施工性と運搬性で選ばれる HATbox

HB-S1
HB-S1H

配管箱1面最大穴数(参考)

Φ75

▶最大9本

Φ100

▶最大6本

Φ125

▶最大6本

Φ150

▶最大4本

Φ200

▶最大2本

HB-S1

詳細図面

ダウンロード → PDF DATA  DXF DATA  DWG DATA

正面図

側面図

上面図

最大外形(mm)奥行高さ
8608601020
総重量64.1(kg)配管箱台座
11.13221
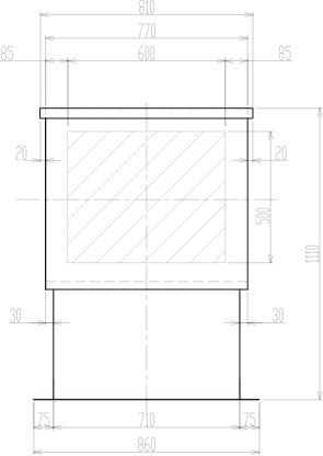
HB-S1H

詳細図面

ダウンロード → PDF DATA  DXF DATA  DWG DATA

正面図

側面図

上面図

最大外形(mm)奥行高さ
8608601110
総重量67.6(kg)配管箱台座
11.13224.5