耐久性抜群&高気密設計、自動復帰対応の高速シートシャッター!ワールド工業
製品情報
/
研究開発
企業情報
採用情報
カタログダウンロード
お問合わせ
ワールド工業トップ
特 徴
製品一覧
オプション品
技術資料
Q&A
施工例
設置事例
カタログ
モノタロウ
施工性と運搬性で選ばれる HATbox
Φ75
▶最大10本
Φ100
▶最大8本
Φ125
Φ150
▶最大6本
Φ200
▶最大3本
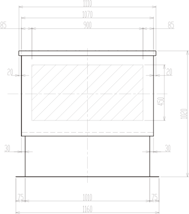
詳細図面
ダウンロード → PDF DATA ▶ DXF DATA ▶ DWG DATA ▶
正面図
側面図
上面図